



































La Torre Altri Tempi alberga la nueva casa de la empresa y todas las exclusivas marcas que esta representa en el país, en un edificio con un envolvente moderno y vanguardista. Está construido con materiales y elementos que en conjunto crean una edificación que se sitúa de manera privilegiada en el paisaje urbano. Su interior ha sido igualmente diseñado para una perfecta armonía entre el interior y el exterior y lograr una obra arquitectónica completa, coherente. Está ubicada en una de las avenidas comerciales más importantes de la ciudad de Santo Domingo, la Av. Roberto Pastoriza No. 460, entre las avenidas Abraham Lincoln y Winston Churchill.
Fue concebido como un showroom, por lo que se utilizan grandes espacios y techos en metal pintados de oscuro, restándole protagonismo, con una iluminación diseñada y dirigida a realzar el mobiliario en exhibición. Vitrinas de altos paños de cristal y pisos en cemento pulido complementan el espacio.
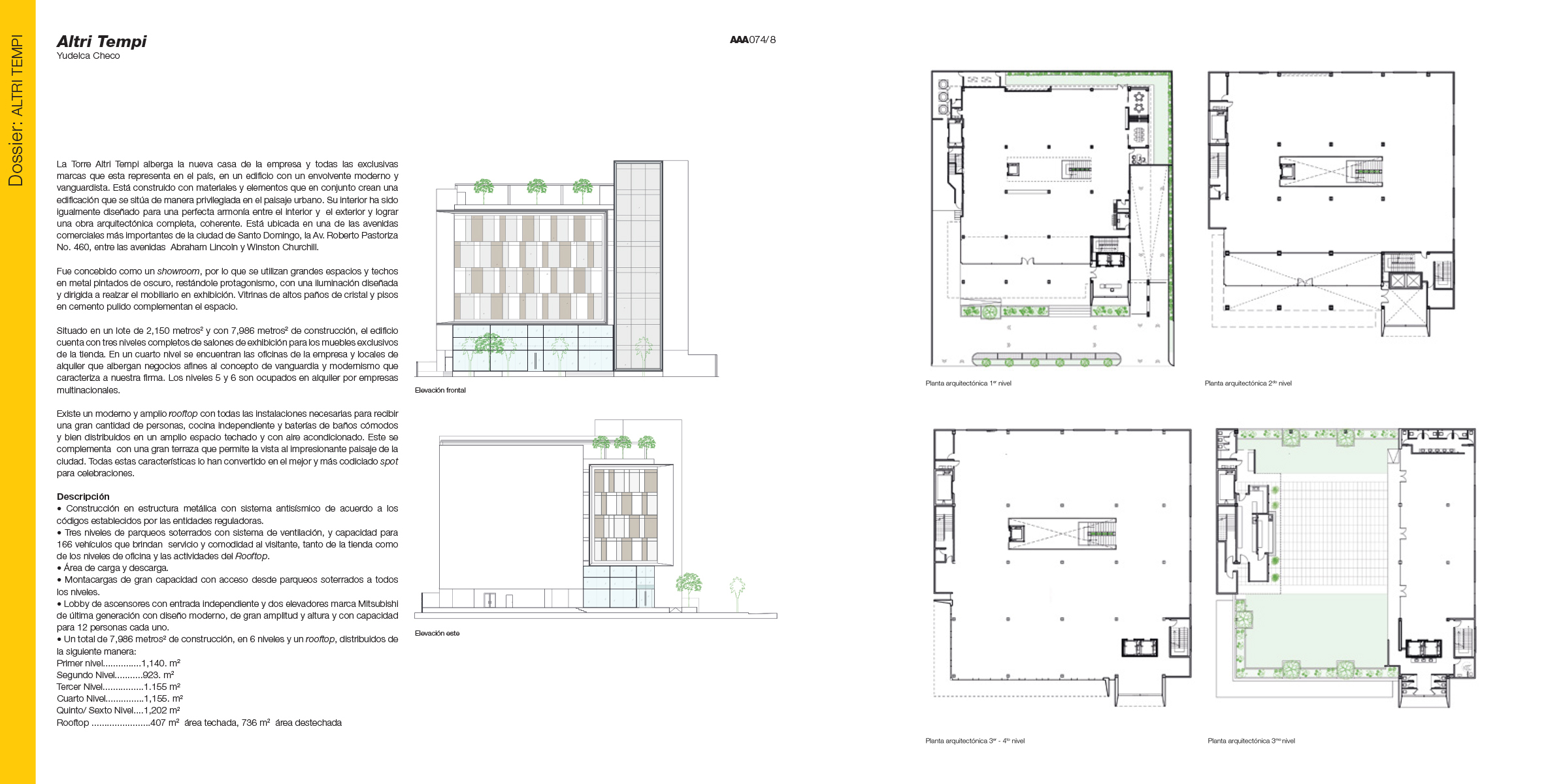
Situado en un lote de 2,150 metros2 y con 7,986 metros2 de construcción, el edificio cuenta con tres niveles completos de salones de exhibición para los muebles exclusivos de la tienda. En un cuarto nivel se encuentran las oficinas de la empresa y locales de alquiler que albergan negocios afines al concepto de vanguardia y modernismo que caracteriza a nuestra firma. Los niveles 5 y 6 son ocupados en alquiler por empresas multinacionales.
Existe un moderno y amplio rooftop con todas las instalaciones necesarias para recibir una gran cantidad de personas, cocina independiente y baterías de baños cómodos y bien distribuidos en un amplio espacio techado y con aire acondicionado. Este se complementa con una gran terraza que permite la vista al impresionante paisaje de la ciudad. Todas estas características lo han convertido en el mejor y más codiciado spot para celebraciones.
Descripción
• Construcción en estructura metálica con sistema antisísmico de acuerdo a los códigos establecidos por las entidades reguladoras.
• Tres niveles de parqueos soterrados con sistema de ventilación, y capacidad para 166 vehículos que brindan servicio y comodidad al visitante, tanto de la tienda como de los niveles de oficina y las actividades del Rooftop.
• Área de carga y descarga.
• Montacargas de gran capacidad con acceso desde parqueos soterrados a todos los niveles.
• Lobby de ascensores con entrada independiente y dos elevadores marca Mitsubishi de última generación con diseño moderno, de gran amplitud y altura y con capacidad para 12 personas cada uno.
• Un total de 7,986 metros2 de construcción, en 6 niveles y un rooftop, distribuidos de la siguiente manera:
Primer nivel……………1,140. m2
Segundo Nivel………..923. m2
Tercer Nivel…………….1.155 m2
Cuarto Nivel……………1,155. m2
Quinto/ Sexto Nivel….1,202 m2
Rooftop …………………..407 m2 área techada, 736 m2 área destechada