




























































































El Campus Humano SD se localiza en un terreno de 18,475.20 metros cuadrados limitado por avenidas de alto tránsito: la Av. San Martín al norte y la Av. John F. Kennedy al sur y con un límite este hacia la calle Horacio Blanco Fombona. En dicho lote se ha propuesto este proyecto de tipología institucional compuesto por dos edificaciones de funciones diferentes que se complementan. Por un lado un edificio de oficinas de 05 niveles y por otro un edificio de parqueos de 7 niveles.
El esquema general del proyecto se desarrolla en función de la forma y características del terreno en combinación con las funciones de las edificaciones que lo componen.
Está conformado por dos edificaciones en una primera fase: Edificio de Oficinas, servicios y Edificio de Parqueos.
El concepto utilizado en el proyecto es el de un gran Campus (del latín campus, llanura) donde se concentran todas de las dependencias de las empresas del Grupo Humano en un mismo espacio y en torno a una plaza compartiendo una relación urbana y creando una sinergia dentro de la empresa. Aquí se unen todas las actividades, en un conjunto rodeado de caminos peatonales, bancos y áreas verdes. Esta plaza da unidad al complejo, relacionando los componentes entre sí, y unificado cada organismo o edificación del proyecto.
Cuenta también con un motor lobby, desde el cual se puede acceder a las entradas principales del Edificio de Servicio y del Edificio de Parqueos. Este a su vez se conecta a la plaza arborizada aportando espacios de esparcimiento con ambientes acogedores para el usuario.
Como parte del paisajismo encontramos arboles de almendros y palmeras, buscando una integración de los elementos naturales al conjunto se incluyen además techos verdes para integrar el proyecto al resto de la ciudad.
Existen dos accesos vehiculares al proyecto:
Con estos accesos el proyecto cuenta con un movimiento desde casi la totalidad de su perímetro, gracias a su privilegiada ubicación.
Con líneas sencillas y modernas cada edificación expresa su función, representando la identidad de la marca HUMANO y manteniendo una armonía entre ellas.
La utilización del espacio público como elemento unificador del proyecto con la ciudad lo convertirá en un ícono arquitectónico.
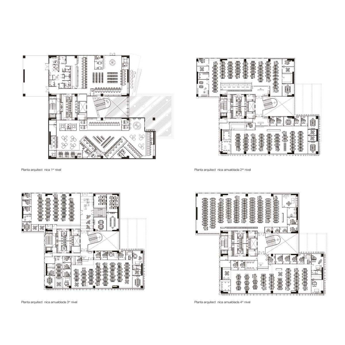
Se compone de dos volúmenes rectangulares de cinco niveles orientados norte-sur, con 1200 m2 por nivel. Ambos bloques se conectan a través de un núcleo de servicios donde se encuentran las escaleras, los ascensores, montacargas, baños y espacios para equipos y mantenimiento.
Ambos volúmenes poseen una planta libre que puede adaptarse según las necesidades de la empresa. En un primer nivel se concentran todas las áreas de acceso al público general, comercial y de atención al cliente además de un dispensario médico para servicio a empleados, conectados por un patio interior y una gran escalinata de acceso principal. En el segundo nivel se desarrollan las funciones de operaciones, reclamaciones y auditoría médica. En el tercer nivel el área de riesgos generales, técnico de vida y calidad, combinado con los salones de reuniones generales del edificio y el puente que conecta el edificio de parqueos. En el cuarto nivel se ubican el call center y la Vicepresidencia de operaciones, por último, en el quinto nivel se encuentran las áreas de comedor y breakroom de los empleados con terraza y techo verde.
La fachada responde a un lenguaje contemporáneo combinando el uso de muros cortinas para entrada de luz natural y los quiebrasoles con el color de la identidad de la marca que sirven de protección al fuerte sol del Caribe.
El detalle de los recintos que componen el edificio se detalla como sigue:
Se podría describir como una planta tipo, con diferencias puntuales:
El Nivel 1 cuenta con acceso desde la ave. John F. Kennedy y desde la plazoleta así como la marquesina. Los niveles 2,3 y 4 mantienen la misma configuración arquitectónica. El nivel 5 en el bloque Sur, se desarrolla una terraza destechada con área verde.
Con acceso y conectada con el núcleo central al Bloque Norte. En el Nivel de azoteas tenemos el cuarto de máquinas.
Este edificio cuenta 7 niveles de parqueos, y con dos accesos: uno desde la Av. San Martín, y el otro desde la Av. John F. Kennedy, a través de la marquesina del Edificio 1. Este a su vez se conecta con el resto de los parqueos y vías internas del proyecto, creando un circuito vehicular dentro del conjunto que facilita el acceso a los estacionamientos. En el primer nivel iniciando por la garita de seguridad, desde la Avenida San Martín se distribuyen las áreas de Servicios del Proyecto que incluyen:
Plantas eléctricas, depósito de basura, contadores, bombas de agua, sistemas contra incendios, y almacenes generales. Cuenta con una circulación vertical que incluye dos ascensores, y dos escaleras de emergencia ubicadas en cada extremo del edificio. En este mismo nivel se encuentra un área de seguridad, y un total de 46 parqueos.
A través de la rampa interna de doble vía se comunica con el resto de los niveles. Los niveles 2,3, 5 y 6 con 60 parqueos cada uno. El Nivel 4, se ha concebido con un tratamiento exterior de jardín creando un interesante quiebre en su volumetría. En este nivel se ubican 59 parqueos. El Nivel 7 y azotea poseen 63 parqueos para un total de 408 parqueos en este edificio.