La firma Bermúdez Arquitectos, activa desde hace 50 años a través de la
experiencia de su socio fundador Daniel Bermúdez, y desde 2017 en conjunto
con sus hijos Ramón, Diego y Antonio, está al servicio del ser humano y de
la sociedad. En los edificios y preceptos de Bermúdez Arquitectos coexisten
principios éticos avalados por la tradición con posturas técnicas y estéticas
innovadoras. En una actitud que es consecuente con la valoración de lo
construido se entiende la enseñanza fundada en el ejemplo y en la presencia
y supervisión de los procesos constructivos en obra. Para nosotros pensar en
arquitectura es pensar en construcción. La firma consolida su experiencia de
lo que significa hacer arquitectura mediante un trabajo colectivo y disciplinado
del que devienen obras estables en el tiempo y el espacio. Así sus edificios
públicos, excelentemente construidos y con materiales austeros y duraderos,
llenos de sentido común, hoy son orgullo de las ciudades que los acogen
y han sido reconocidos ampliamente a nivel internacional. Para tal fin se
requiere la colaboración de muchos expertos, cada uno de los cuales aporta
su conocimiento específico, siempre guiados por los arquitectos y su equipo
de trabajo. Las respuestas provistas definen espacios para llevar a cabo
actividades humanas en circunstancias de seguridad, confort y belleza. Los
edificios resultantes propenden por la comprensión, conducción y resolución
del conjunto de fuerzas, condiciones y contradicciones que rodean las obras y
los procesos que terminarán en la entrega y puesta en marcha de los edificios,
atendiendo en primer orden los requerimientos de la ciudad y de la sociedad.
Sus obras han desencadenado importantes procesos de regeneración urbana
en las ciudades en las que se emplazan, han devenido íconos y símbolos de
importancia institucional y cultural.
La firma cuenta con una extensa producción arquitectónica, reseñada en el
libro monográfico dedicado a su obra publicado por la editorial Lunwerg (2010).
Dentro de un notable listado sobresalen proyectos tales como: Biblioteca el Tintal
(2000), Centro Cultural Biblioteca Pública Julio Mario Santo Domingo (2006),
Edificio de Posgrados, Biblioteca y Galería Universidad Jorge Tadeo Lozano
(2001), El plan maestro de la Universidad de los Andes y dentro de esta los
edificios Lleras (1991), Bloque B (1998) y El Carlos Pacheco Devia (2005), todos
estos en Bogotá; la Planta Industrial Quala en República Dominicana (2003) o
el Ágora Bogotá Centro de Convenciones, en conjunto con Estudio Herreros
de Madrid (2018), entre otros. Entre los proyectos más recientes se encuentra
la nueva sede de la Fundación Universitaria Compensar en de Bogotá (2025),
la sede en Villavicencio de la Universidad Minuto De Dios, la restauración del
Amira de la Rosa en Barranquilla actualmente en construcción, la ampliación
de la sede colegio Marymount la misma ciudad, tres sedes de la Universidad
Cooperativa en Bogotá, o el diseño de la cooperativa de vivienda OIKOOP, en
Madrid, España.
Bermúdez Arquitectos ha recibido premios y reconocimientos en la Bienal
Colombiana de 1992, 1998, 2004, 2008, 2014, 2018, Premios Cemex 2004 y
Asocreto 1998, 2002, 2004, Premio Holcim 2014, Premio Fiabci 2018, Premio
CCCS 2025, o la Bienal de Arquitectura de Quito, entre otros
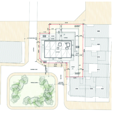
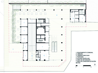
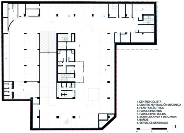
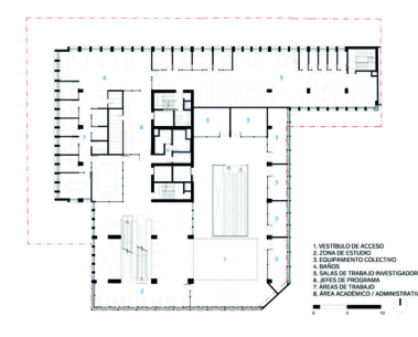
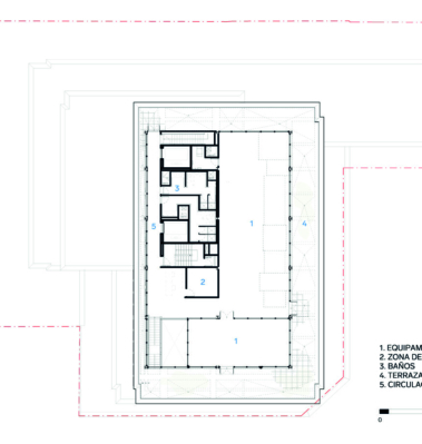
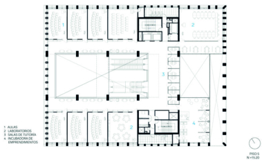
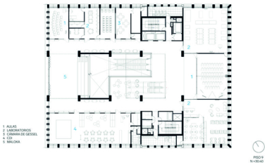
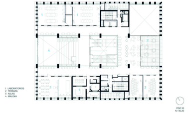
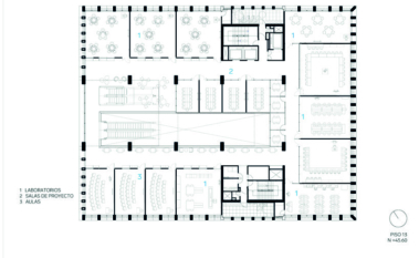
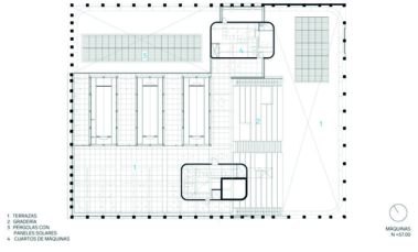
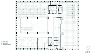
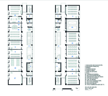
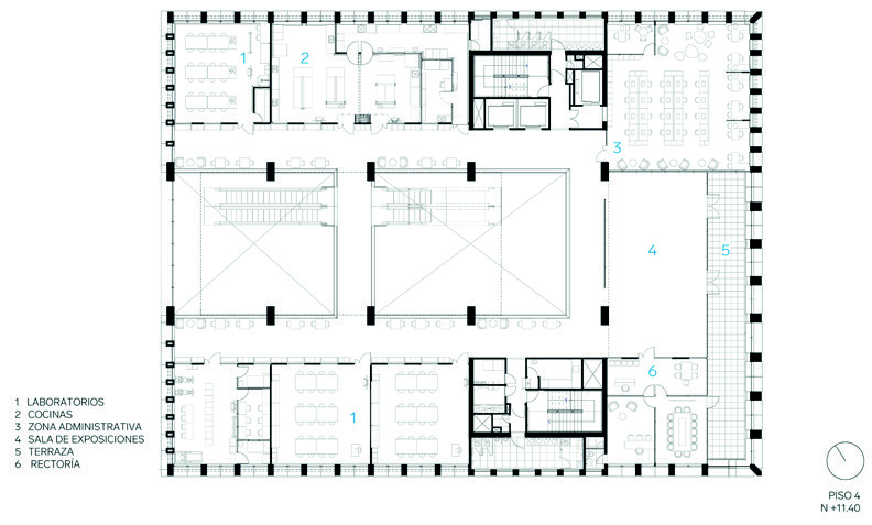
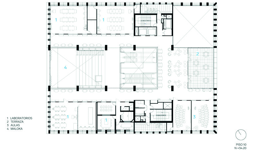
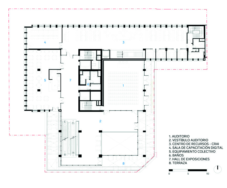
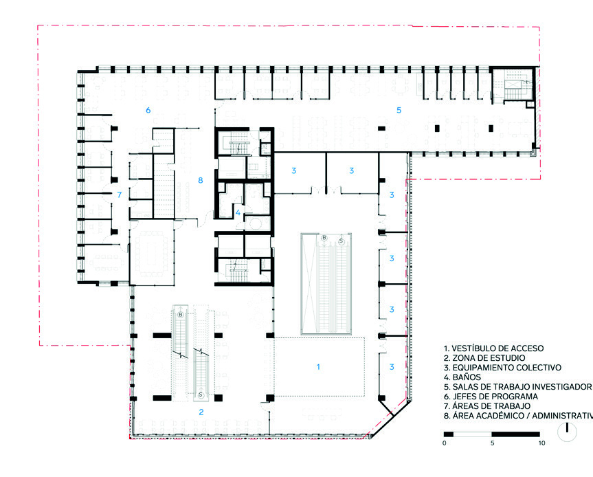
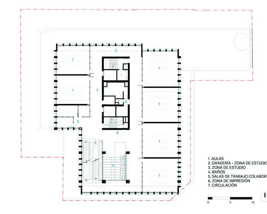
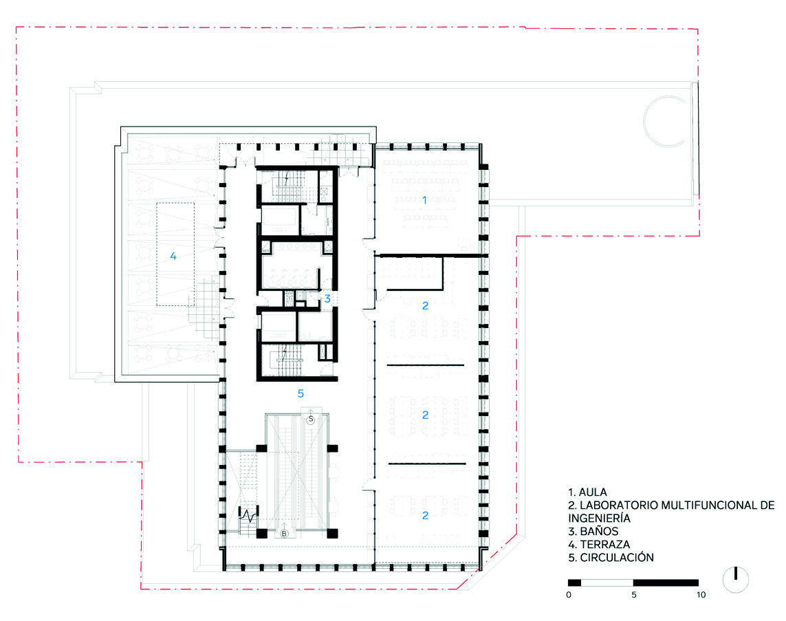
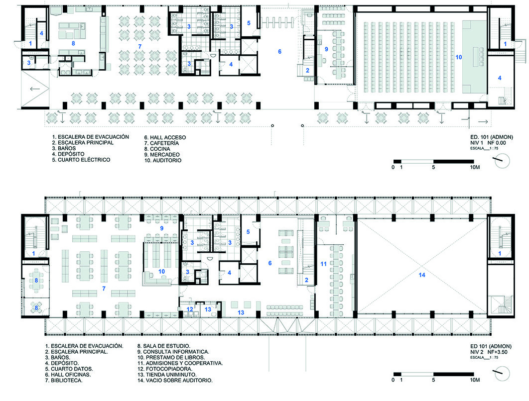
UNIVERSIDAD COOPERATIVA
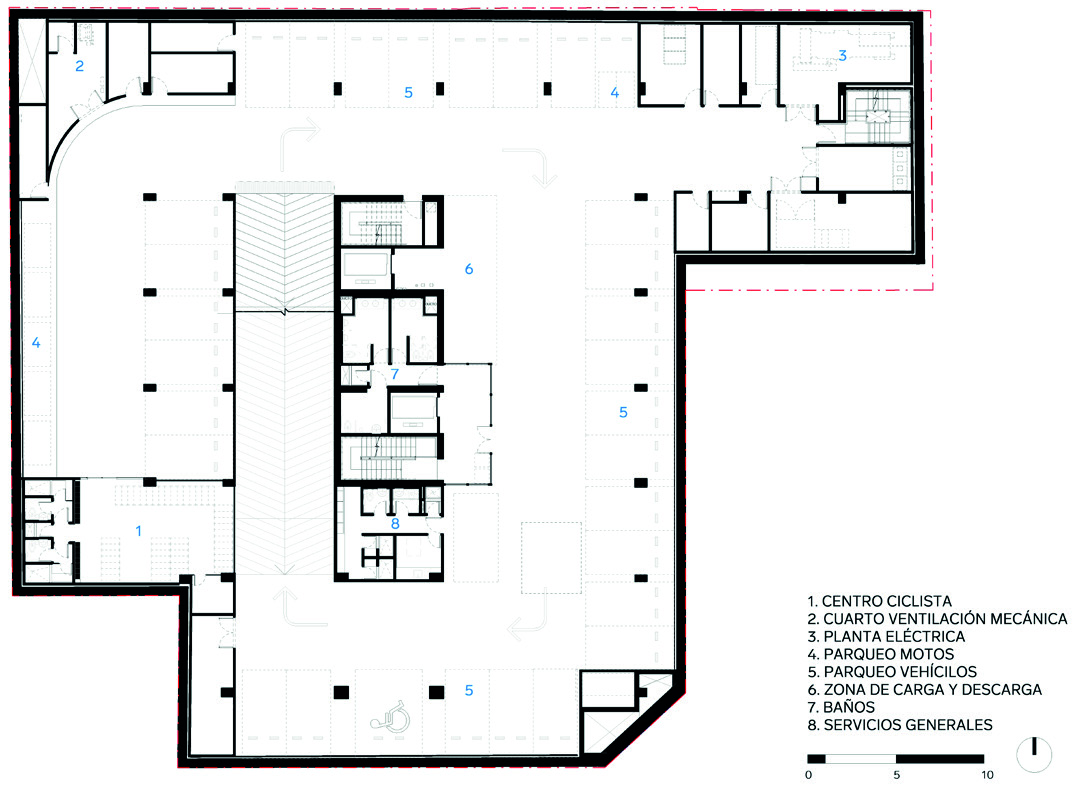
Edificio de Aulas y laboratorios AOG 4 – Universidad Cooperativa de Colombia
En desarrollo 2019-2022
Total Área Construida: 15.767 m2
Uso: Universitario
Naturaleza del contrato: Diseño Arquitectónico y paisajístico
Alcance: Elaboración de los diseños arquitectónicos y paisajísticos, elaboración
del conjunto de los estudios técnicos, coordinación técnica y trámites de
licencias de construcción.
El Área Operativa de Gestión (AOG) 4 mantiene directrices de diseño de
consolidación de campus y articulación con la ciudad al igual que la AOG 3.
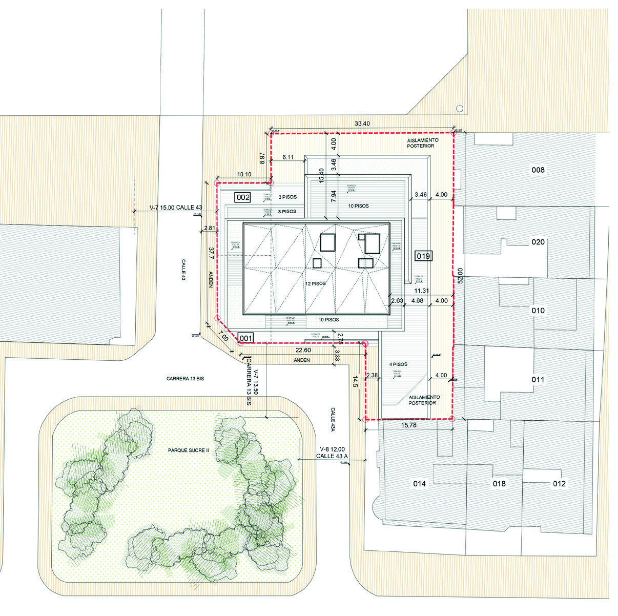
En este caso, el proyecto se encuentra implantado en el costado occidental del
Parque Sucre II, un pequeño nicho de espacio público de la calle 13, una vía de
alto tráfico de la localidad de Chapinero.
El proyecto establece una conexión con el parque sucre por medio de un área
de mitigación peatonal, distribuyendo en el nivel de acceso el programa que
puede ser utilizado por el público externo, como locales comerciales y una
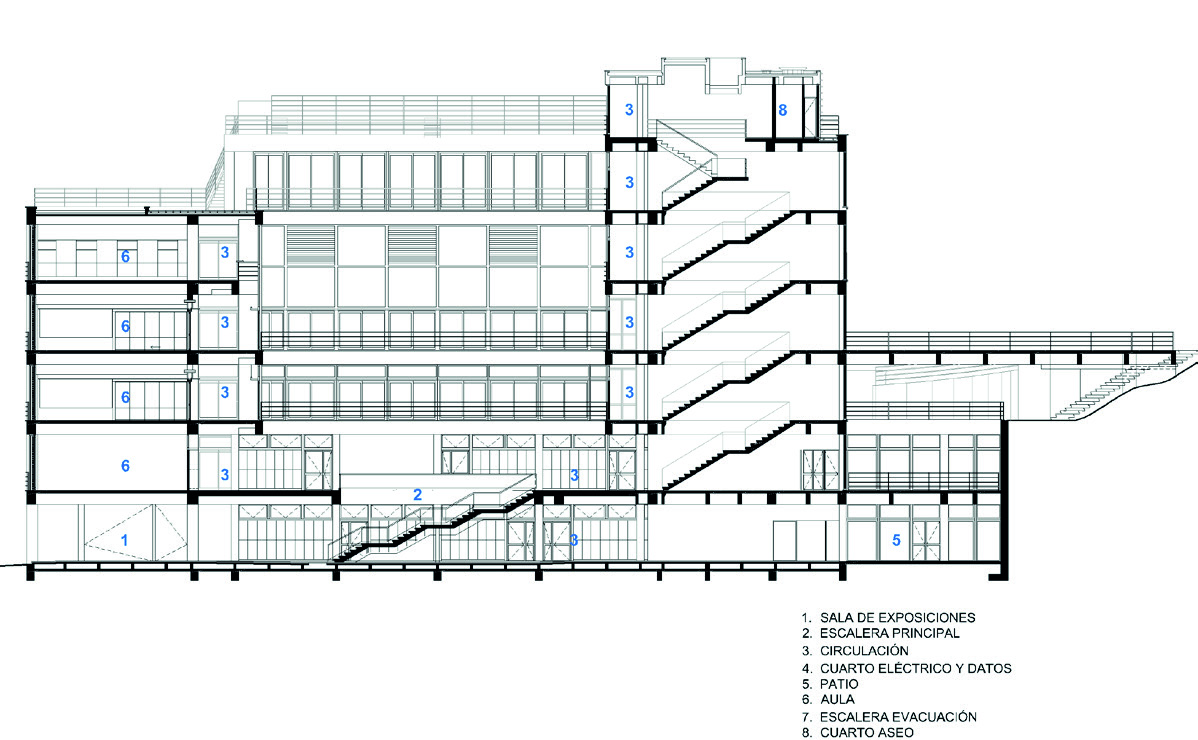
librería. A partir de la plataforma en el segundo nivel se encuentra el acceso a
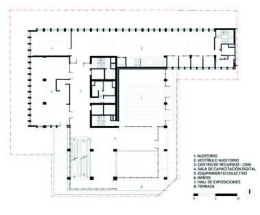
los espacios académicos, allí se encuentra un hall de exposiciones, auditorio,
cafetería y un centro de recursos.
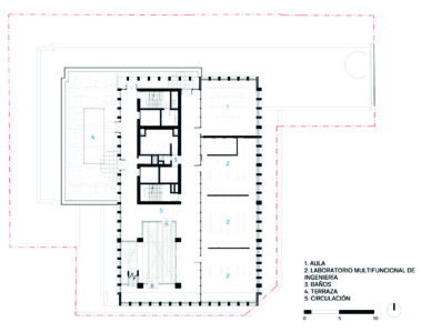
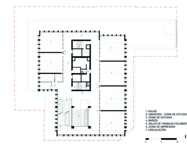
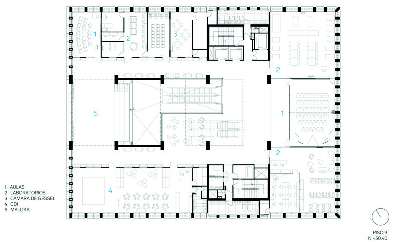
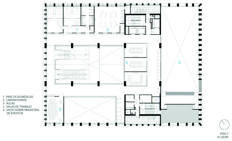
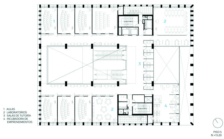
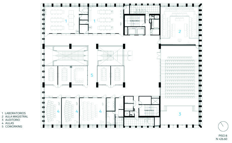
En los pisos siguientes se reparten las aulas, laboratorios especializados y
pequeñas terrazas además de espacios de coworking para estudiantes. En
último nivel se destina para espacios de salud y bienestar conformado por un
gimnasio y un salón de baile.
Se garantiza el correcto funcionamiento de estas aulas y laboratorios por medio
de un núcleo, concentrando las circulaciones verticales, evacuaciones de
emergencia y servicios sanitarios y técnicos.
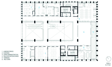
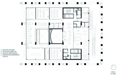
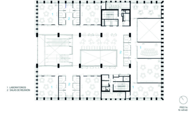
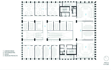
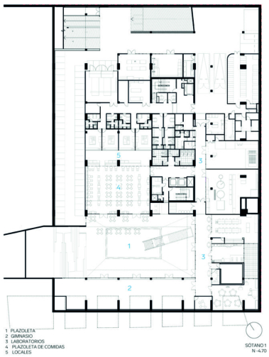
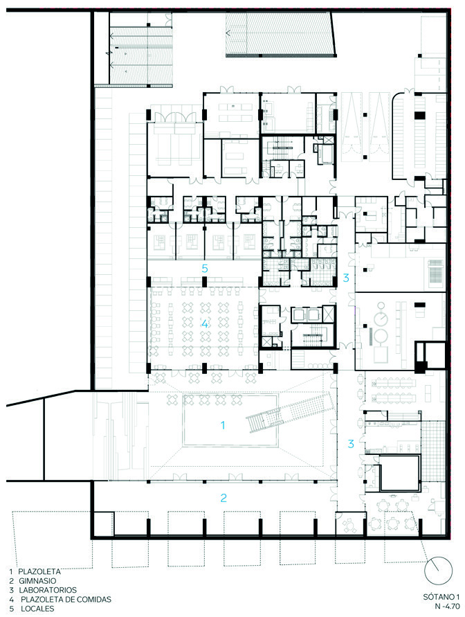
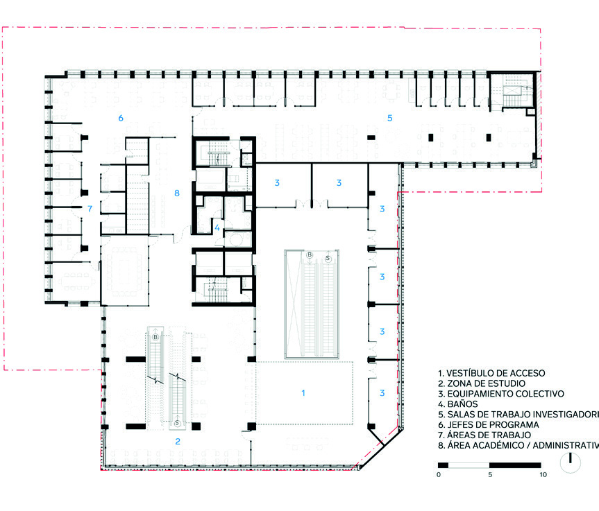
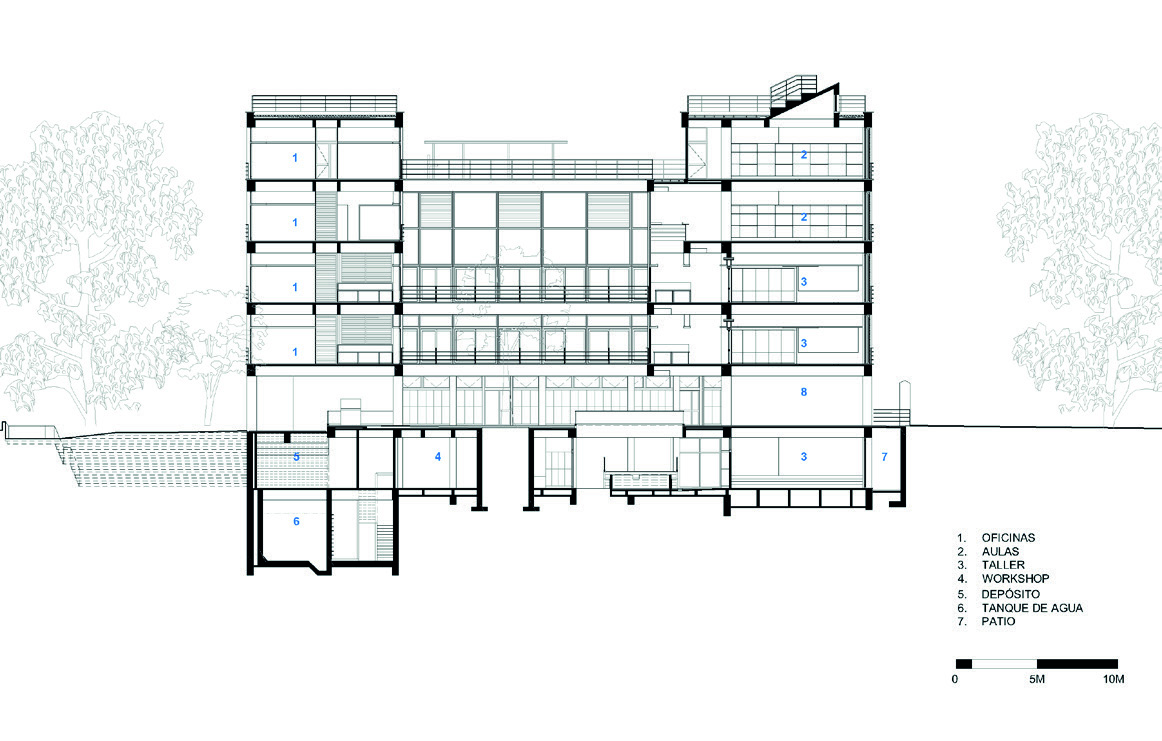
UCOMPENSAR
2013 – 2024
Total Área Construida: 45.347,62 m² (27.00m2 primera fase)
Naturaleza del contrato: Diseño urbanístico, paisajístico, arquitectónico y
coordinación técnica.
Alcance del contrato: Diseño Arquitectónico, supervisión arquitectónica,
obtención de licencia de urbanismo y construcción del proyecto.
La densificación urbana y las crecientes demandas de nuevas instituciones
académicas en los centros urbanos están en la base de la proliferación de
campus universitarios verticales en la ciudad de Bogotá. Este caso, localizado
en el centro geográfico de la ciudad, es especialmente interesante debido a
los requerimientos específicos de hibridación de programas, tradicionalmente
separados pero que al juntarlos se logra un espacio único en el país donde
academia, bienestar y empresa pueden encontrarse de manera simbiótica.
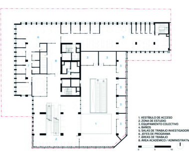
Los primeros niveles están destinados a locales comerciales y a la biblioteca,
abiertos a toda la ciudadanía. Solo hasta el nivel 3 aparece el vestíbulo principal,
al cual se accede por medio de escaleras mecánicas directamente desde el
espacio público. En el corazón del edificio (pisos 9 y 10), se encuentra el espacio
de bienestar con programas de educación no formal para todos los grupos
de edad que hace la transición entre el espacio de la empresa en los pisos
inferiores – que incluye espacios de alquiler de espacios y un pequeño centro
de convenciones para generar interacción – y los pisos superiores que albergan
los espacios académicos propiamente dichos de la universidad.
La estructura en fachada, combinada con las 4 grandes patas que contienen
los espacios técnicos así como las escaleras de evacuación, permite no tener
apoyos intermedios en los espacios interiores, potenciando la flexibilidad de
los mismos. El recorrido vertical se hace a manera de paseo arquitectónico a
través de escaleras mecánicas que se mueven por todo el edificio mezclando los
diferentes programas, invitando a la interacción entre poblaciones y despertando
la curiosidad de todos los visitantes.
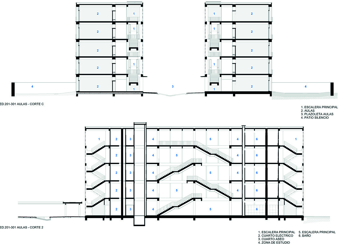
CAMPUS UNIMINUTO
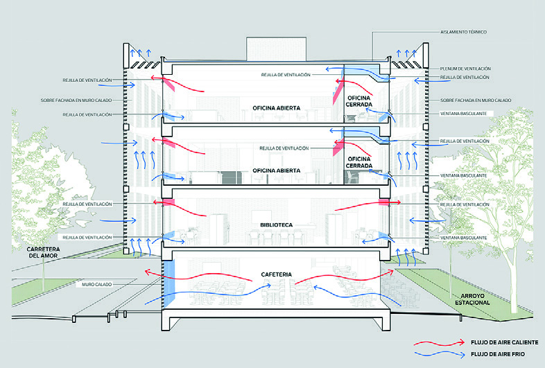
Campus Universitario Tropical
Villavicencio, 2015
Encargo privado, Construido. 17.000 mt2
Sede de Uniminuto en Villavicencio.
El clima de la ciudad de Villavicencio puede considerarse como un caso tipo
de estudio para las zonas cálidas de la geografía colombiana. Situada a 450
msnm, con una temperatura promedio anual de 25.5° C y una sensación térmica
acrecentada por una humedad relativa cercana al 80%, necesariamente requiere
de unas estrategias para atemperar los espacios del campus. La arquitectura
está en capacidad de proveer un confort térmico suficiente tanto al interior de
los salones como en los espacios públicos del campus y ese es el cometido de
este proyecto. Con este reto en mente se han planteado una serie de estrategias
espaciales conducentes a lograr el lugar más cómodo posible para estudiantes,
docentes y administrativos del campus.
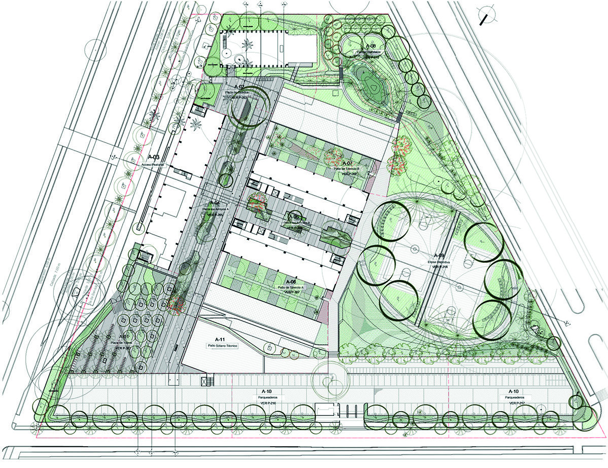
Por un lado, la orientación de los diferentes volúmenes en el solar de más de 2
hectáreas prioriza que los edificios de 5 pisos de aulas tengan la mejor relación
de soleamiento. La administración de 4 niveles se paramenta con la vía de
acceso y por lo tanto requiere de una segunda piel en calado para protegerse
del sol de mañana y tarde.
Por otro, la ventilación natural trae consigo el ruido del campus que debe ser
controlado, ya que las aulas necesitan de silencio para lograr condiciones
óptimas de confort. Para esto se han propuesto unos patios de silencio hacia
donde abren todas las aulas y unas trampas acústicas entre las circulaciones y
las aulas que permiten el paso del aire, pero no del ruido.
Los edificios de aulas no tienen vidrio y el límite entre interior y exterior se define
a través de calados, persianas y puerta-ventanas deslizantes. El manejo del
espacio público en el proyecto se desarrolla en dos plazoletas principales
ubicadas entre las edificaciones en donde se proyectan suelos permeables y
vegetación autóctona para aportar al componente bioclimático de los espacios
interiores.
El agua es el asunto central del proyecto de exteriores y se convierte en el
material de diseño siempre cambiante para definir zonas secas (edificaciones) ,
zonas de escorrentías (plazas y zonas de estar) y zonas inundables ( jardines de
lluvia y estanques).
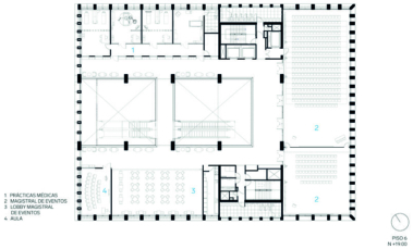
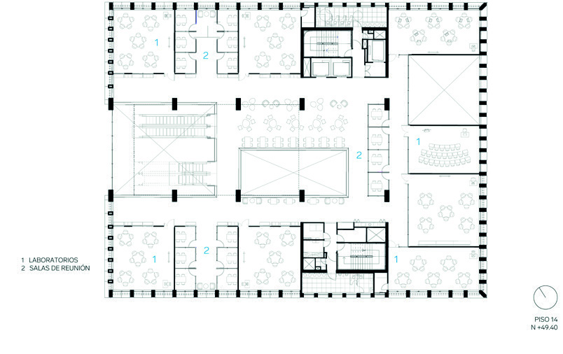
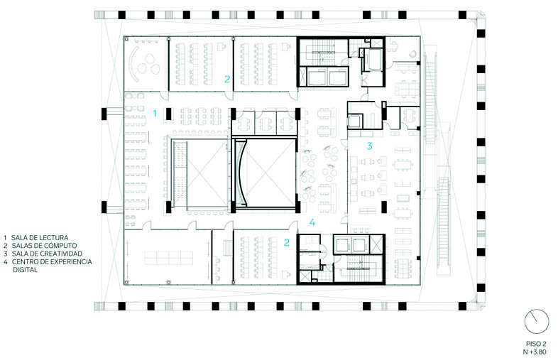
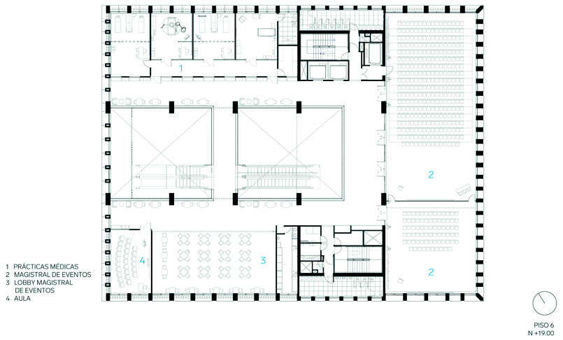
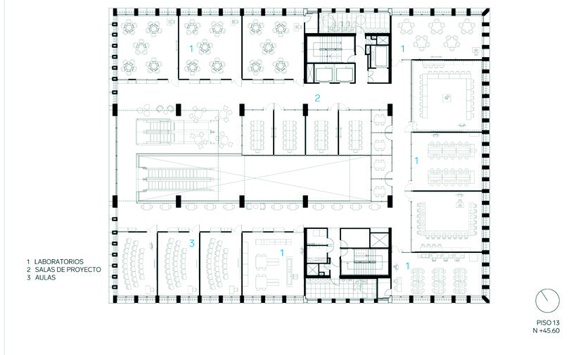
FACULTAD DE ARQUITECTURA UNIANDES
El edificio de arquitectura es el bloque central del campus universitario y última
pieza del plan de ordenamiento que hizo Daniel Bermúdez para la Universidad
de los Andes, cuya primera pieza fue el edificio Alberto Lleras, premio de diseño
arquitectónico en la XIII Bienal de Arquitectura en Colombia de 1992.
En el proceso de diseño del edificio C de la Universidad de los Andes, Bermúdez
Arquitectos ha intentado acercarse a la noción del “edificio que puede enseñar”.
Son muchas las lecciones que un edificio puede dar, el problema es que
normalmente estos conocimientos son invisibles para los estudiantes. Una de las
intenciones de este edificio es que pueda enseñarle a los estudiantes algunas
lecciones claves sobre los sistemas técnicos que componen un edificio. Hacer
visible lo invisible. Enseñar (que significa dar signo, dar significado) supone que
se debe mostrar y explicar lo que se quiere que estudiante aprenda.
La nueva Facultad de Arquitectura está ubicada en la parte central del campus
y cumple un papel relevante en la conexión tanto vertical (occidente-oriente)
como horizontal (sur-norte) del campus: Es un conector en diferentes niveles
de la topografía que busca replicar las relaciones y espacios abiertos que son
característicos en el campus. Para esto conecta los diferentes niveles topográficos
y permite la continuidad de las circulaciones existentes proponiendo la unión
entre los espacios abiertos y conexiones que generan los edificios tradicionales
del campus, con la eficiencia de los grandes bloques desarrollados durante los
últimos años.
El proyecto se fundamenta en 4 principios, especificados por el cliente desde
el programa:
El principio pedagógico, porque busca reflejar los elementos esenciales de la
práctica de la enseñanza de la Arquitectura y el diseño.
El principio Integrador, porque promueve la interacción entre los estudiantes de
esta facultad, con el resto de la universidad y genera espacios específicos para
la generación de comunidad entre los mismos integrantes de la facultad.
La Flexibilidad, al promover diversos usos de sus espacios educativos a partir
de la incorporación de elementos móviles y mobiliario que promueve este valor.
El principio Orgánico, porque integra variables ambientales, elementos pre-
existentes en el paisaje y componentes espaciales presentes en la memoria
colectiva de la institución.
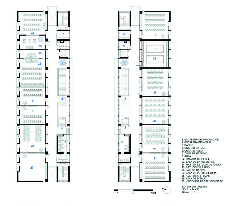
El patio central, espacio representativo y de encuentro de la facultad, es un
espacio de integración que actualmente no existe en el campus. A partir del
segundo piso aparecen los espacios pedagógicos especializados para la
enseñanza de la arquitectura: Las aulas polivalentes. Son espacios que permiten
la aplicación de diversos métodos gracias a su flexibilidad. La circulación es
un espacio de trabajo e interacción, que se puede integrar a los salones de
clase, gracias al sistema de divisiones móviles. El aula polivalente es un espacio
compuesto por seis módulos independiente para trabajo de un profesor de
diseño o arquitectura con un grupo de máximo 20 estudiantes. Los dos módulos
centrales se pueden integrar para poder impartir clases magistrales a los 100
estudiantes de un mismo Taller de proyectos.
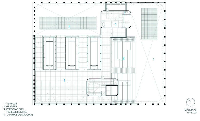
La cubierta es el espacio final de este recorrido. Es un lugar en el que el estudiante
se conecta con la ciudad, con el campus, con la presencia de la estructura
ecológica principal. Es donde se descansa, se come y en general donde ocurre
una parte importante de la vida del edificio y de la facultad. Un auditorio al
aire libre, un espacio para aprovecharlo con montajes de los estudiantes de
arquitectura y diseño. Un espacio para volver a descubrir el skyline de la ciudad
y los cerros.
Área: 8561 m2
Jefe de diseño: Daniel Bermúdez
Equipo de diseño: David Caballero, David Barbosa, Juan Camilo Ortegón, Paula
Sopó, Santiago Salazar, Julián Beltrán
Cálculo estructural: CNI Ingenieros Consultores
Diseño hidrosanitario: Hidroobras
Presupuesto y programación: PAYC LTDA
Diseño acústico: ADT Diseño & Tecnología – Daniel Duplat
Diseño de iluminación: MTS Consultoría de Iluminación y Cia SAS
Estudio de tráfico vertical: Ing. Rafael Beltrán
Diseño Paisajístico: Arq. Diana Wiesner
Fotografía: Enrique Guzmán G.
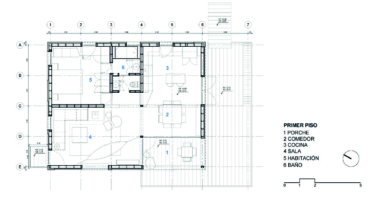
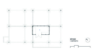
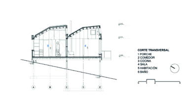
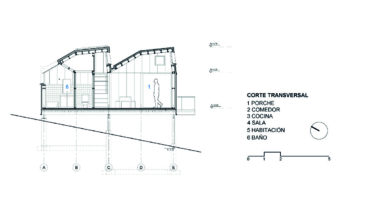
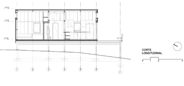
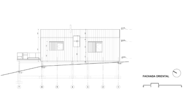
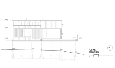
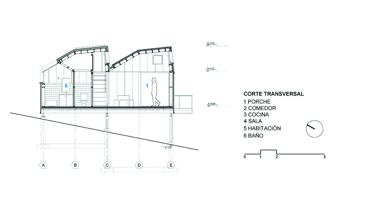
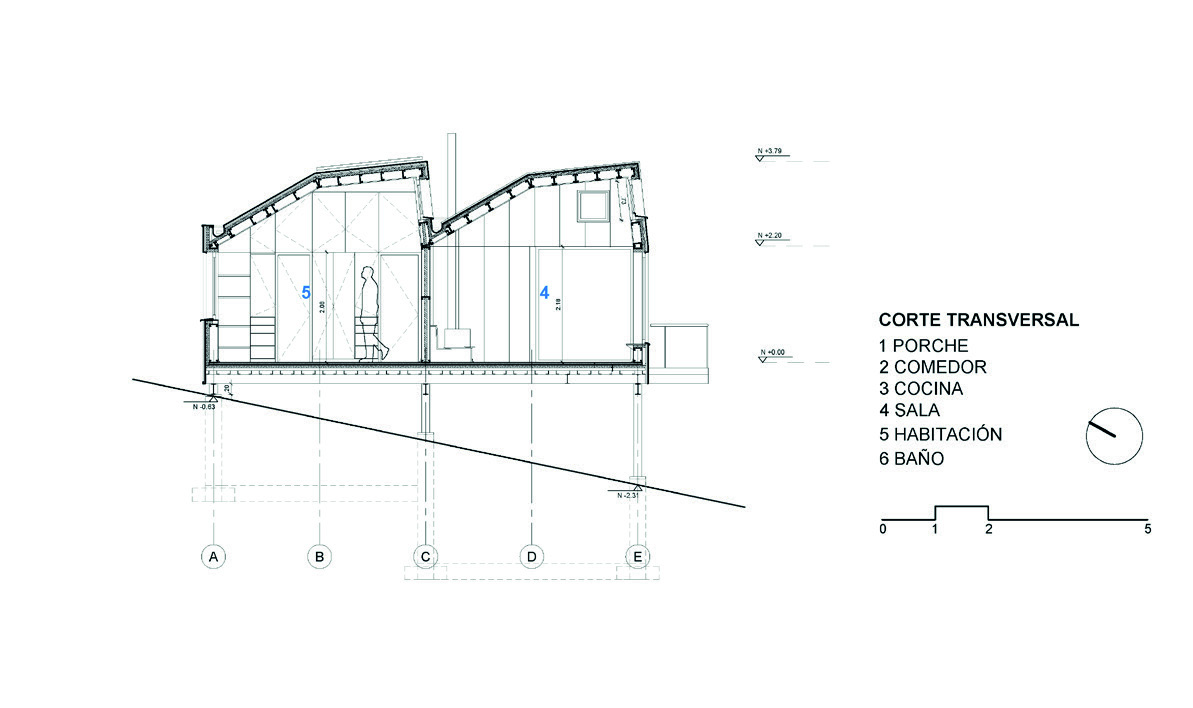
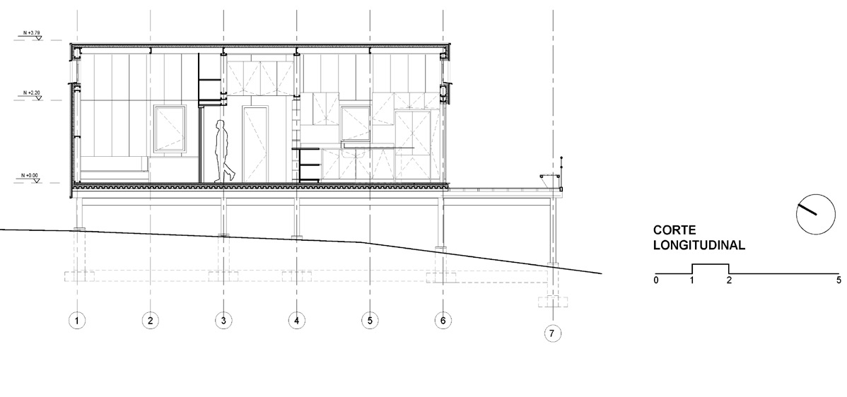
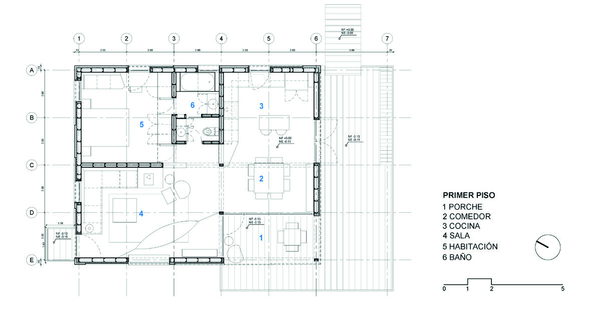
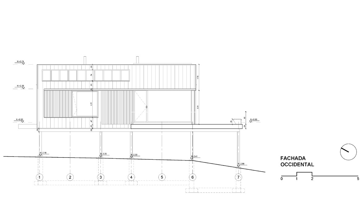
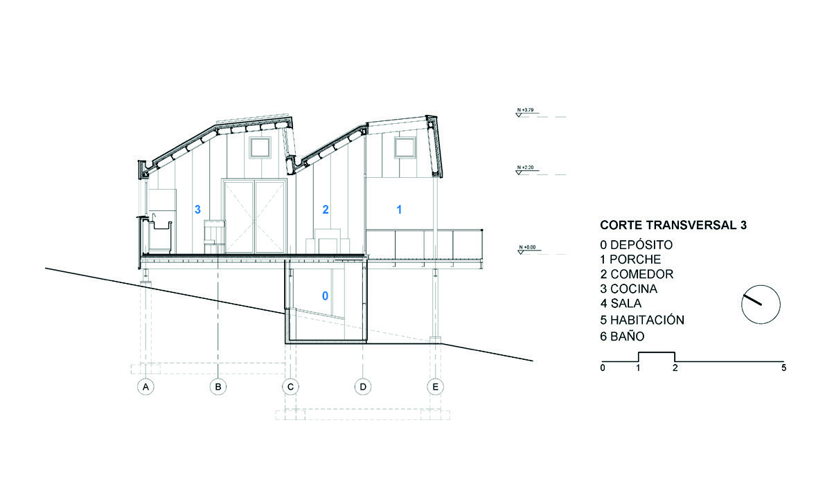
CASA CARUPA
Carmen de Carupa,Colombia 2022
Encargo privado, Construido. 136 mt2
Ubicada en la mitad del campo, en una reserva natural privada a 3500 metros
sobre el nivel del mar, Casa Carupa es un refugio de alta montaña que se adapta
a las necesidades del habitar en un clima tropical de alta montaña, también
conocido como sub-páramo, por ser punto intermedio entre el páramo y el
bosque alto Andino, cuyas temperaturas que oscilan repentinamente entre 0 y
21 grados C en un mismo día.
Bajo estas condiciones climáticas y geográficas (con unas vistas privilegiadas
de los Andes, alejada de todo y en un lugar que pretende conservar al máximo
las condiciones naturales preexistentes), el proyecto se concibe siguiendo estas
premisas:
1. Primero, se diseña para ser construido como un refugio de una sola habitación
prefabricado en seco con la intención de traer la inmensa mayoría de los
materiales premontados y cortados y volver el proceso un montaje en seco con
el menor impacto en el entorno. El único proceso húmedo con concreto se hace
en los 15 dados de cimentación. La estructura de este volumen se construyó en
seco mediante el sistema de Steel framing, un muy liviano sistema estructural
estandarizado donde todos los perfiles colaboran a la estabilidad del conjunto,
y una placa de Steel Deck con forjado seco tipo sándwich y OSB de 20mm.
2. El proyecto Parte de una modulación de 4m x 4m, dónde en cada módulo
se ubica la habitación, cocina, estar y el comedor con porche. Estos módulos
son ensamblados con una franja intermedia de 2 m x 4m destinada al cuarto de
baño y la ampliación de la zona social, conformando así un volumen rectangular
rematado por una cubierta en forma de diente de sierra.
3. La modularidad del sistema constructivo y la estandarización de los espacios
hace que la casa pueda crecer en el tiempo con el mismo modulo estructural y
espacial conformando una vivienda de más habitaciones y espacios exteriores.
4. La envolvente está cuidadosamente pensada para lograr el mayor confort
térmico posible sin consumir energía. Para esto, se conciben los ventanales y
lucernarios de esta estructura están orientados hacia el sol de la mañana con
el objetivo de aprovechar al máximo la radiación solar y captarla al interior. Una
vez captada, la intención es conservarla lo más posible al interior reduciendo las
pérdidas de calor. El paquete térmico de fachada, placa y cubierta está compuesto
por varias capas de protección impermeable (teja en lámina metálica, y capa
impermeabilizante), térmica (capas intermedias de poli estireno expandido y lana
de roca) y de barrera de vapor para lograr un sistema de “estructura caliente”. Las
ventanas se especificaron con rotura de puente térmico, permitiendo grandes
aperturas al paisaje sin perder eficiencia en el aislamiento.
5.En busca de la discreción necesaria para aterrizar en un lugar así, el refugio
busca diferenciarse del paisaje sin llegar a ser llamativo. Por esta razón se ha
escogido un material único para la fachada hecha de teja metálica grapada
pintada al horno con un color azul marino escogido para esta ocasión. Dicho
color es complementario a la paleta general de colores del paisaje, con lo que
la casa se disimula en el bosque alto andino sin caer en el camuflaje directo de
corte militar.
6. En oposición al exterior austero y frío, los muros interiores están forrados en
paneles de madera OSB que en complemento con un suelo en vinilo de color
cálido garantiza una sensación de calidez y domesticidad.






































































































































